Život u studentskom domu često počinje od nametnute bliskosti u minimalnom prostoru. Visoka gustina stanovanja i energija mladosti čine da arhitektura studentskog stanovanja "puca" od života. Prostor u tom smislu ima izrazitu moć da inicira bliskost i veze među ljudima, često razvijajući prijateljstva za ceo život. Projekat budućeg doma za 1000 studenata u okviru kompleksa Studentski grad se zasniva na pažljivom naglašavanju interakcije među ljudima, kroz više nivoa razvoja prostora. Svaka soba pruža spektar mogućih konfiguracija minimalnog prostora za različite scenarije svakodnevnog života i stepene bliskosti među cimerima. Na taj način, ona omogućava smeštaj različitim društvenim grupama (dvoje stranaca, prijatelji, rođaci, par), ali se lako i prilagođava postepenom upoznavanju i razvijanju bliskosti među studentima koji u njoj žive. Uparivanjem soba i smicanjem po dubini razvijaju se mikro komšiluci oko lođa duplih visina, gde 8 studenata dele jedno zajedničko otvoreno dvorište. Dalje, svi stanari jednog sprata imaju svoju veliku krovnu terasu i dnevnu sobu uz nju - terase su među sobom kaskadno povezane, pa je omogućena vizura i interakcija sa daljim komšijama na ostalim nivoima. Suptilnim radijalnim sužavanjem svake jedinice i minimalnim kaskadiranjem zgrade ka spoljašnjosti formiraju se dve kružne lamele i veliko zajedničko dvorište u sredini kao momenat zajedničkog fokusa svih 1000 studenata.
U širem okruženju, projekat teži da značajno i prepoznatlivo nadgradi vec izuzetno jak duh mesta u okviru Studentskog grada od kojeg je pre više od 70 godina krenula izradnja novog grada sa druge strane reke. Formiranjem nove zgrade, istovremeno se formira i novo mesto okupljanja - nova kapija Studentskog grada. Novi veliki “amfiteatar” pod otvorenim nebom simbolički ujedinjuje svih 1000 novih studenata, ali i sve stare koji ovuda ulaze u grad. Kružni karakter zgrade prizilazi iz potrebe za udruživanjem, formiranjem zajednica, fokusiranjem ka zajedničkom cilju i nadovezuje se na prepoznatljivu novobeogradsku urbanističku matricu, kao zaveštanje koje ovo mesto nosi sa sobom za sve buduće generacije i izgradnje.
U energetskom smislu, kružni objekat pruža mogućnosti najefikasnijeg iskorišćenja najmanje fasadne površine, te time minimalizuje toplotne gubitke i dobitke tokom godine. Sve sobe su međusobno ušuškane u gusto pakovanu kružnu matricu, dok istovremeno usled radijalne dispozicije, svaka soba ima za nijansu drugačiji pogled i dnevno osunčanje. Dve polukružne lamele se razmiču tačno po osi sever-jug. Time se sa južne strane propušta maksimalno direktne sunčeve svetlosti, dok se sa severne strane uvlači šuma Studentskog grada u samo srce zgrade. Istovremeno, razmicanjem ka severu, izbegavaju se jedinice koje neće tokom dana biti direktno osunčane, i zadržava se prolaz sunčeve svetlosti direktno do postojeće Lamele 4F u neposrednoj blizini nove zgrade. Kako bi se postigao čovekomerni utisak zgrade izrazite gustine stanovanja i značajne ukupne površine, svaku lamelu čine tri nivoa (po dva sprata) koji se međusobno smiču, i minimalno kaskadiraju po visini, tako da se cela zgrada suptilno otvara ka nebu u unutrašnjem dvorištu, dok sa spoljne strane formira blagi zaklon pešaka u zoni prizemlja. Na krajnjem južnom delu parcele, ispred nove zgrade i neposredno uz autobusku stanicu na auto putu, odakle studenti svakodnevno dolaze iz centra grada, formira se novi ulaz u ceo kompleks kroz srce novog objekta, kao pandan čuvenom kružnom platou sa druge strane - prečnik unutrašnjeg dvorišta nove zgrade je 50 metara, isto kao i prečnik postojećeg ulaznog platoa kompleksa.
Skok od razmere jedne minimalne jedinice do razmere zgrade u kojoj je smešteno čak 1000 ljudi savladan je gustim pakovanjem i smicanjem soba po dubini, tako da se formiraju dvovisinske lođe u vidu mikro komšiluka koje dele 8 studenata. Na taj način za istu dužinu fasade umesto tri, dobijene su četiri sobe, i mali čovekomerni otvoreni prostor koji zimi ujedno može da postane i zajednička zimska bašta kada se zatvori ka spoljašnjosti. Kaskadiranjem krajeva kružnih lamela formirane su zajedničke krovne terase i velike dnevne sobe duplih visina za studente na svakom spratu. Najveća dnevna soba je na najnižem nivou iznad prizemlja, namenjena većim okupljanjima (žurke, radionice, skupovi..), dok se ka višim etažama prostori smanjuju i postaju intimniji i prigodniji za učenje i mirniji boravak. Zapadna lamela je za dve etaže viša od istočne, kako sa te strane nema bliskih suseda, pa se na njenoj krovnoj terasi nalazi veliki zajednički otvoreni prostor celom dužinom, sa pogledom na prostrano ozelenjeno unutrašnje dvorište. Vizuelnim i fizičkim povezivanjem krovnih terasa na kaskadama, inicira se povezivanje i interakcija većih grupa studenata, razmena ideja, sklapanje poznanstava… Objekat je funkcionalno podeljen na dve zasebne lamele – istočnu i zapadnu, koje mogu samostalno da funkcionišu, sa po dva ulaza – A, B, C i D. U visokom prizemlju obe lamele smeštene su veće zajedničke zone za učenje, rad i rekreaciju, uprava doma i manji kafe, dok su u suterenskoj etaži planirani svi tehnički i servisni prostori. Čitavo prizemlje je planirano kao potpuno protočno, u duhu Nove kapije Studentskog grada, tako da omogući prolaske korisnika dominantno od novog ulaza u kompleks na jugu, ali i sa tri ostale strane ka okruženju. Ukoliko to u budućnosti bude bilo potrebno i izvodljivo, u ostatku suterenskog nivoa ispod cele zgrade moguće je izgraditi podzemnu garažu sa 110 parking mesta za potrebe korisnika celog kompleksa Studentskog grada.
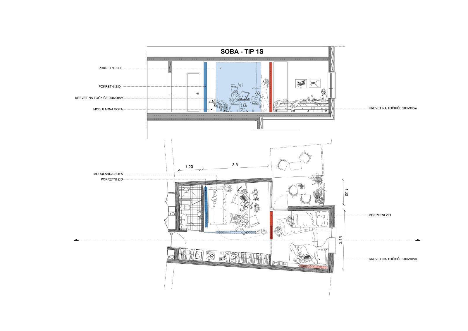
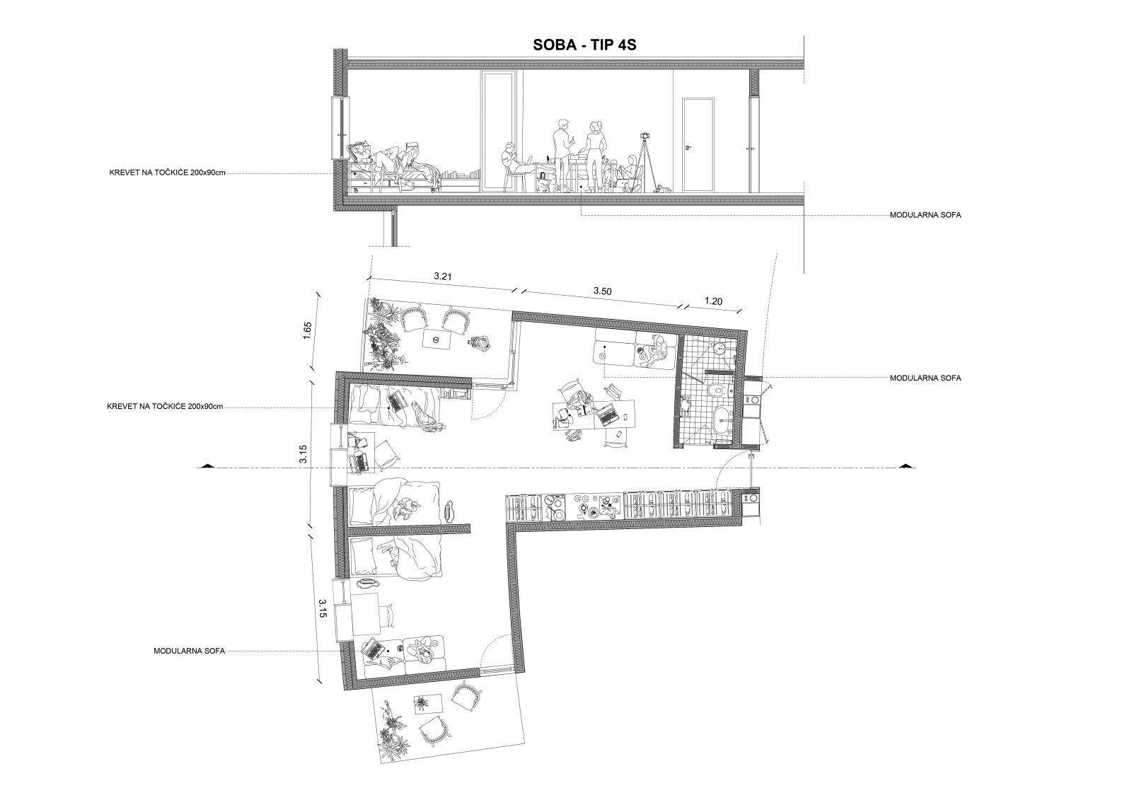
Čitav sklop grade četiri tipa jedinice, koji zatim dodatno variraju u odnosu na to da li se nalaze u unutrašnjem ili spoljašnjem prstenu lamele, i na kojem su nivou, kako se unutrašnji prsten ka gornjim spratovima sužava, a spoljašnji prsten se povećava. Primarni tip od kojeg nastaju svi ostali tipovi je Tip 1 – dvokrevetna soba sa zajedničkom lođom. U osnovnoj konfiguraciji ova soba može da smesti dva studenta, kada površinski poraste postaje trokrevetna, a ukoliko se udvoji postaje veći prostor za četiri studenta koji dele zajedničku kuhinju i kupatilo. Cela zgrada je modularno projektovana, u konstruktivnom sklopu koji može da omogući lako spajanje i razdvajanje jedinica u celom Domu na godišnjem ili višegodišnjem nivou, u odnosu na to kako se potražnja i želje za načinima stanovanja menjaju. Osnovne dvokrevetne jedinice po potrebi mogu da smeste i trećeg studenta bez narušavanja komfora, što bi značilo da kapacitet cele zgrade može da poraste za oko 50% u budućnosti.
Osnovnu dvokrevetnu sobu čini jedistven otvoren prostor, sa dva pomerljiva zidna elementa, koji mogu da se pozicioniraju na više načina u odnosu na bliskost među studentima.
U jednom od mogućih scenarija, na samom početku boravka cimeri se ne poznaju, pa se mogu zidovima potpuno odvojiti i funkcionisati u dve zasebne sobe sa deljenim kupatilom i kuhinjom. Kako vreme prolazi i njihova bliskost raste, jedan zid mogu skloniti tako da imaju veću dnevnu zonu sa kuhinjom u kojoj bi spavao jedan student, a jednu izdvojenu sobu u kojoj bi spavao drugi. U slučaju da se još više zbliže, mogli bi odlučiti da u izdvojenom delu oboje spavaju, kako bi im dnevna zona ostala slobodna za zajedničke svakodnevne aktivnosti i okupljanja. U krajnjoj varijanti, oba zida se mogu potpuno sklopiti tako da soba postane jedan čist prostor sa maksimalno vazduha i dnevne svetlosti, pa i sa maksimalnom slobodom dnevnog korišćenja. U nekim drugim situacijama posebna konfiguracija sobe se može odmah na početku prilagoditi specifičnim potrebama stanara – ukoliko su u pitanju rođaci možda će odmah odlučiti da spavaju u izdvojenoj sobi, ukoliko je mladi bračni par takođe, dok na primer pandemijski uslovi omogućavaju potpuno izdavajanje jednog studenta od drugog.
Visok nivo održivosti objekta, tokom izgradnje i eksploatacije postignut je kroz nekoliko nivoa koncipiranja prostora. Na nivou šireg konteksta, pozicioniranjem procepa između lamela na osi sever jug i orijentacijom svih soba dominantno ka istoku i ka zapadu - omogućen je maksimalan upliv dnevne sunčeve svetlosti do svih soba u novom Domu, kao i očuvanje kvalitetne dnevne osvetljenosti postojećih objekata kompleksa - Lamela 4F i 4G. Uvlačenjem šume Studentskog grada u unutrašnje dvorište i oko novog Doma, postignuta je dodatna zaštita novog objekta – u toplotnom, zvučnom smislu, ali i u smislu zaštite od zagađenja sa visokofrekventnog auto-puta u neposrednoj blizini.
Razmicanjem tri nivoa zgrade po visini, doprinosi se otvaranju prostranog unutrašnjeg dvorišta ka nebu i povećanom uplivu dnevne svetlosti u samo srce zgrade.
Kružna konfigruacija zgrade i strategija gustog pakovanja smicanjem po dubini doprinosi svođenju ukupne površine fasadne opne na minimum, i time značajnom umanjenju toplotnih gubitaka zimi i pregrevanja leti. Smicanjem su dobijene lođe, koje imaju ulogu mikroklimatskog regulatora za sobe koje je dele. Lođa se zimi zatvara laganim plastičnim opnama sa spoljne strane, tako da ona postaje toplotna bafer zona između unutrašnjosti soba i spoljašnjeg prostora. Svaka lođa je svojevrsna zimska bašta svog mikro komšiluka. Dupla visina lođa dodatno doprinosi povećanom uplivu dnevne svetlosti u dubinu unutrašnjeg prostora svake sobe, i prijatnom zasenčenju i zaštiti od pregrevanja tokom vrelih letnjih meseci.
U konstruktivnom smislu, objekat je koncipiran u hibridnom sistemu gradnje – kombinacijom minimalne armirano betonske skeletne konstrukcije za nivo suterena i prizemlja, sa prefabrikovanim elementima od unakrsno lameliranog (CLT) drveta na svim višim nivoima, što povoljno utiče na održivu izgradnju i eksploataciju budućeg objekta. CLT drvo karakteriše obnovljiva i održiva proizvodnja, mogućnost prefabrikacije i brze montaže na licu mesta, što značajno umanjuje vreme provedeno na gradilištu i negativne uticaje na životnu sredinu. Tokom svom životnog veka drvo vezuje velike količine CO2 u svojoj strukturi tako da celokupno doprinosi smanjenju karbonskog otiska novog objekta. Dodatno, CLT drvo ima i poboljšana termička svojstva, umiruje fluktuacije spoljašnje temperature, omogućava sloj dobre izolacije bez toplotnih mostova. Objekti od CLT drveta predstavljaju zdravije životno okruženje, jer je sama struktura paropropusna, što sprečava pojavu buđi i umanjuje mogućnost biodegradacije (izvor https://drvotehnika.info/). Novi objekat studentskog Doma konstruktivno je projektovan tako da se može graditi i tradicionalnim sistemom gradnje, rasponi su do 7 metara i omogućene su kontinualne vertikale prenosa opterećenja po visini, uprkos značajnom smicanju nivoa.
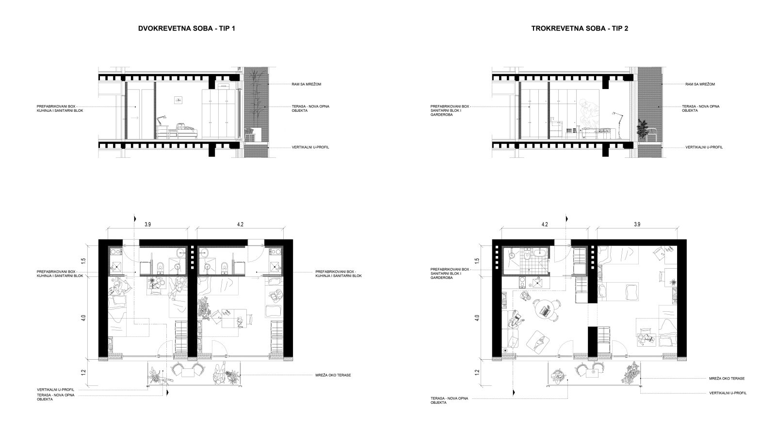
Pažljivom adaptacijom postojećih objekata u kompleksu Studentskog grada teži se celokupnom poboljšanju komfora stanovanja, imajući u vidu da su objekti izgrađeni pre čak 7 decenija, i predstavljaju vredno kulturno-istorijsko zaveštanje od kojeg je otpočela izgradnja čitavog Novog Beograda. U tom smislu, radi unapređenja prostornog komfora i energetske efikasnosti lamela, projekat predlaže 4 stadijuma fazne rekonstrukcije:
1. UNAPREĐENJE SOBA pozicioniranjem novog prefabrikovanog servisnog bloka (kupatilo i kuhinja) neposredno uz zajednički centralni hodnik u dubini sobe, tako da se omogući maksimalna širina fasade za upliv svetlosti u dnevne prostore. Rekonstrukcijom kompleksa devedestih godina prošlog veka kupatilo je iz nepoznatih razloga pozicionirano uz samu fasadu, tako da je u odnosu na originalni projekat značajno umanjen prostorni kvalitet svake stambene jedinice.
2. UVEĆANJE SOBA pripajanjem postojećih terasa unutrašnjem prostoru, čime se površina sobe povećava u skladu sa novim savremenim standardima komfornog studentskog stanovanja, i ujedno se isključuje meandriranje fasada koje u postojećem stanju značajno doprinosi toplotnim gubitcima tokom zimskih meseci (masivna zidna konstrukcija značajno izlazi ispred fasade formirajući postojeće terase).
3. OBOGAĆIVANJE TIPOLOGIJE SOBA uvođenjem udvojenog tipa sobe, gde troje studenata dele zajednički dnevnu zonu, kuhinju i kupatilski blok. Dodatno na svakoj etaži je jedna soba otvorena ka zajedničkoj komunikaciji radi formiranja manjih dnevnih soba na višim etažama, kako su do sada svi zajednički prostori bili smešteni samo u prizemlju.
4. DODAVANJE DUPLE OPNE na postojeću zgradu omogućava se dodatni mikroklimatski regulator, kao i nove deljene terase za sve stambene jedinice. Svake dve sobe dele po jednu terasu, a njihovim smicanjem dobijaju se duple visine terasa i novi mikro komšiluci za parove susedne sobe. Dodatno u okviru duple opne terase se smiču tako da susedi vide jedni druge, čime se dodatno inicira interakcija među stanarima, deljenje i formiranje novih prijateljstava “preko plota”. Rater nove duple opne je smaknut na pola postojećeg prepoznatljivog rastera starih lamela, tako da on ostane vidan i dodatno naglašen superponiranjem slojeva koji čine novu opnu. Sa spoljne strane omogućeno je potpuno zatvaranje strukture laganim platnenim zastorima kao šatita od direktnog sunca, ili providnim plastičnim folijama ka severnim stranama I visokom zelenilu, čime se formira jedna svojevrsna zajednička mikroklima u zimskim mesecima, velika vertikalna zimska bašta koju dele svi studenti jedne polovine lamele!
Parterno uređenje celog kompleksa Studentski grad zasniva se na ideji podsticanja interakcije među studentima, od velikih grupa i okupljanja na glavnim platoima, preko manjih neformalnih okupljanja u zelenilu i na rekreativnim površinama, do individualnog boravka i učenja na miru u otvorenom prostoru. Ceo kompleks je bogat izuzetno kvalitetnim visokim zelenilom, koje se projektom potpuno čuva, čak naglašava tako da nastavi da čini specifičan karakter Studentskog grada. Svi elementi uređenja partera su u tom smislu razvijani u dijalogu sa drvećem, i koegzistiraju zajedno sa njim u otvorenom prostoru.
