EKO-KUĆA nastaje kao savremena interpretacija karakterističnog svakodnevnog života u tradicionalnoj panonsko-vojvođanskoj kući. Sa jedne strane, ona čuva lokalne običaje i postojeći, autentični način života u skladu sa prirodom, a sa druge nudi nove prostorne obrasce koji su dovoljno agilni da odgovore na stalne turbulencije života u savremenom trenutku i u budućnosti. Eko-kuća ne liči na vojvođansku kuću, niti preuzima njene prepoznatljive oblikovne elemente koji su bili odraz kulturološke i tehnološke realnosti vremena u kojem je nastala. Ona je savremena i nova u svom arhitektonskom i prostornom izrazu, u želji da donese novi duh stanovanja u skladu i miru sa prirodom u budućnosti. Ujedno, u njenu prostornu logiku utkani su kvaliteti i autentični obrasci života u vojvođanskoj kući, pre svega kroz tri osnovna postulata:
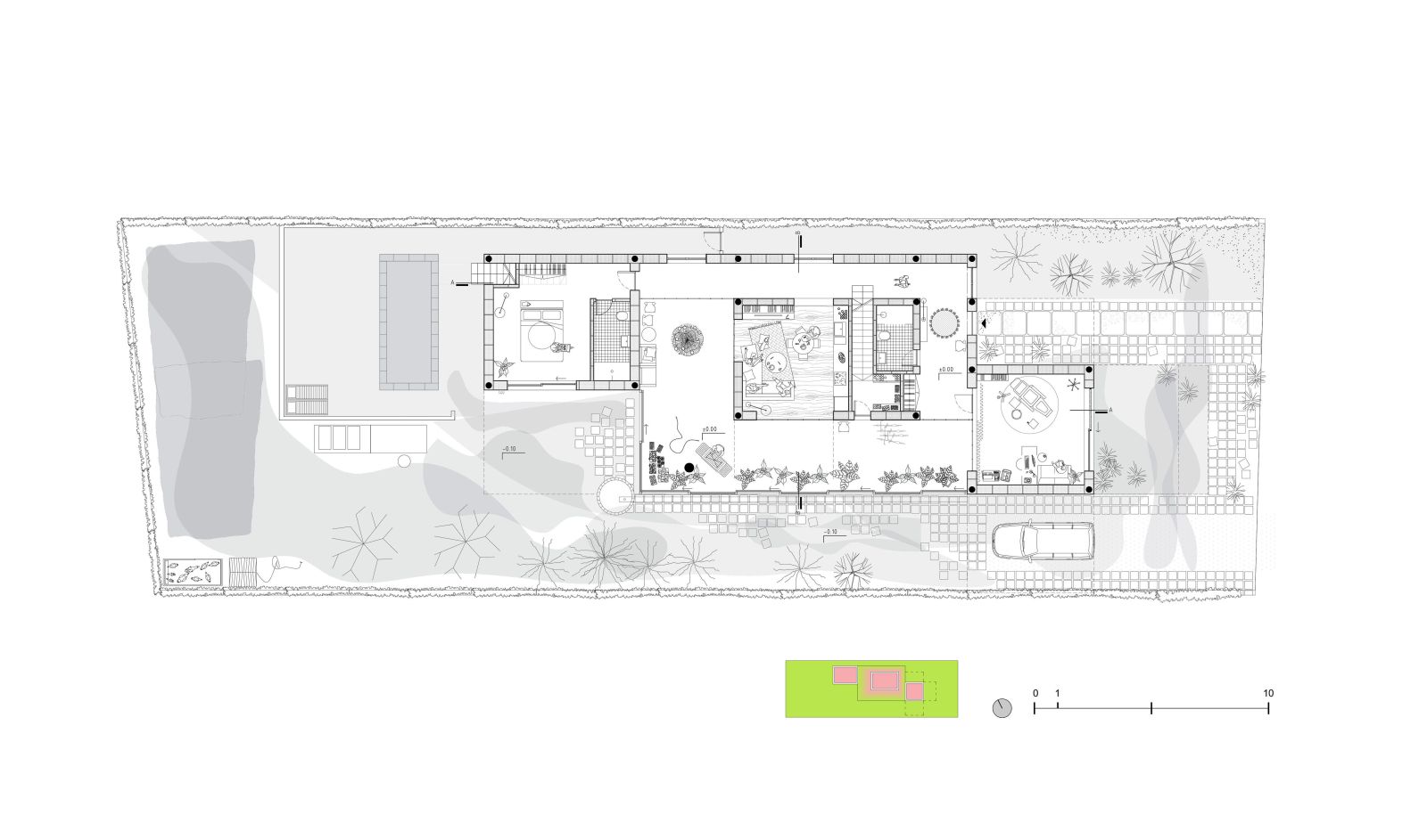
Svaku Eko-kuću čine dve osnovna elementa - SALON ka ulici, i OGNJIŠTE SA TREMOM u dubini parcele. U pojedinačnim tipovima, kuća raste dodavanjem trećeg jednospratnog ili dvospratnog elementa – spavaće sobe ka dvorištu. /// OGNJIŠTE /// Ognjište sa tremom predstavlja srce Eko-kuće, u energetskom i funkcionalnom smislu, i njen osnovni životni prostor. Potiče od karakteristične centralno pozicionirane “druge sobe” vojvođanske kuće – kuhinje se ognjištem u kojoj se odvijao svakodnevni život porodice, i koja je zajedno sa tremom povezivala sve ostale prostore u kući. Ognjište je koncipirano da servisno može da opsluži sve prostore kuće, ali da je ujedno samo po sebi prostor za dnevni boravak. /// TREM /// Tradicionalni linijski trem vojvođanske kuće razvijen je kroz čitav plan prizemlja, prstenasto oko centralnog ognjišta, u cilju potenciranja što intenzivnije veze kuće sa dvorištem. Trem je koncipiran tako da postane ekstenzija osnovnog životnog prostora u ognjištu. Preko njega se svakodnevni život stanara širi iz ognjišta ka prirodnom okruženju, i obrnuto. Kao međuprostor, intenzivnije frekventnosti koršćenja, trem teži polivalentnosti, jer je prepušten slobodi tumačenja korisnika u odnosu na specifične scenarije i potrebe.
Salon je prva soba Eko-kuće ka ulici, i aktivator veze privatnog prostora kuće sa javnim prostorom ulice. On je naslednik ideje o izloženoj gostinskoj sobi i posebno ukrašenom zabatnom zidu vojvođanske kuće kao statusnom simbolu porodice. Salonom se kuća i porodica predstavljaju svetu, i uspostavljaju neposrednu vezu sa lokalnom zajednicom. Salon u kontekstu Eko-kuće postaje inicijator novih savremenih obrazaca stanovanja, u zavisnosti od potreba korisnika. On može biti pokretač lokalne proizvodnje i zanatstva (piljara, nakit, radionica), kućna kancelarija (arhitekta, advokat), izlagački prostor, soba za izdavanje ... ili jednostavno produžetak dnevne zone ka ulici, reprezentativni prostor za doček i zabavu gostiju.
U sklopu celog naselja, Eko kuće su pozicionirane “na duž”, ili “na brazdu”, linijski uz severnu granicu ka komšiji, tako da se svaka kuća otvara svojim dvorištem ka jugozapadu. Svaku kuću čine dva ili tri osnovna elementa, koji se smiču po dubini parcele, tako da formiraju dve specifične mikroklime oko kuće – veliko jugozapadno dvorište, osunčano tokom većeg dela dana, i intimniju, ulaznu severoistočnu avliju ka ulici, osunčanu jutarnjim suncem, i u prijatnoj senci tokom ostatka dana. Za razliku od panonsko-vojvođanske kuće, koja je bila primarno orijentisana ka svom dvorištu, smicanjem segmenata kuće podstiču se intenzivnije veze sa susedima, a povlačenjem svake druge kuće ka dubini parcele, formiraju se široke dijagonalne vizure iz zajedničke ulice naselja kroz više ozelenjenih dvorišta u isto vreme.
U tehnološkom smislu, projektom Eko-kuće teži se definisanju novog, ekološkog načina stanovanja I koegzistencije sa prirodom, pre svega kroz primenu jednostavnih prostornih strategija, koje se zatim dodatno nadograđuju naprednim tehničkim sistemima. Ognjište i u energetskom smislu predstavlja srce kuće – ono je zajedno sa ostalim jezgrima primarni grejani prostor, dok se zona trema može po potrebi pripajati kući ili dvorištu. Osnovni servisni prostori kuće (kuhinja, kupatilo, kotlarnica), kao i svi tehnički sistemi (kotao na gas, toplotna pumpa – hydrounit, pametna kontrola grejanja i hlađenja, solarni kolektori) koncentrisani su u ognjištu, i iz njega se razvode ka tremu i ostalim jezgrima kuće. Sva tri jezgra kuće čine masivni termoizolujući zidovi od Ytong termo bloka 37.5, i Ytong bele tavanice, dok je ploča prstenastog trema izvedena u armiranom betonu.
Kuća je koncipirana tako da se širi i skuplja u odnosu na sezonske promene i potrebe stanara. Leti je život koncentrisan u tremu, koji se potpuno otvara ka dvorištu, a opslužuje ga multifunkcionalni prostor hladnog ognjišta u sredini – ovde se sprema i skladišti hrana i kontroliše tehnika cele kuće. Zimi je focus života ognjište, a trem postaje tampon zona između ugrejanog prostora ognjišta i hladnog zavejanog dvorišta oko njega. U tom smislu, u slučaju manjih porodica, co-living scenarija, ili na primer situacija kada odrasli odlaze na posao i ne borave u kući tokom celog dana, starijim generacijama je omogućeno da zagreju samo prostor ognjišta i spavaćih soba, a da trem postane prostrana zimska bašta, nešto niže, ali prijatne temperature za boravak, uzgajanje biljaka, rekreaciju ili odmor.
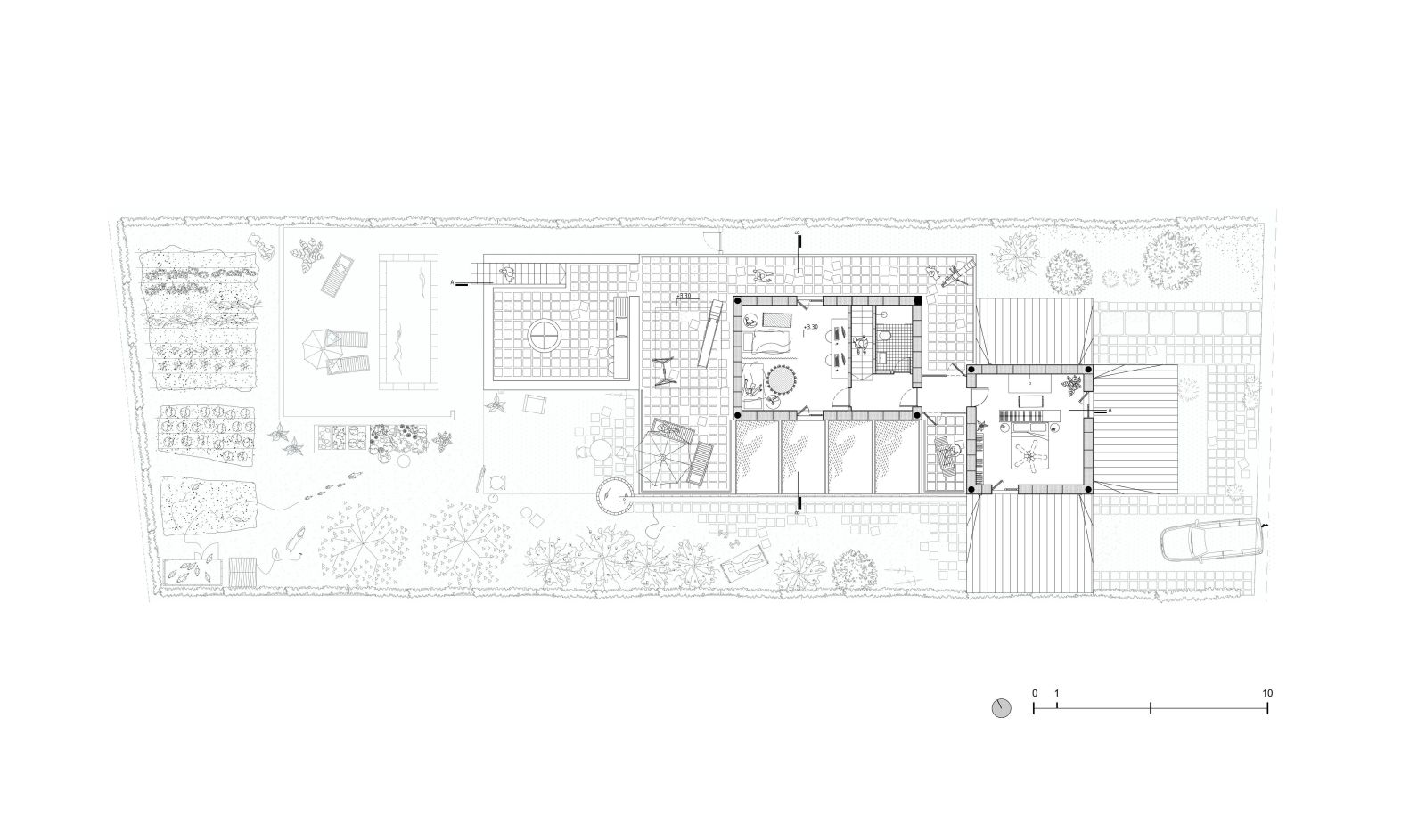
U zavisnosti od veličine i životnog scenarija, Eko-kuća može imati dva tipa trema – klasični i pametni. Oba trema omogućavaju razvijanje života u kući – kružne veze, veze sa dvorištem I salonom ka ulici. Pametni trem je zastakljen ka okruženju i fizički (vazdušno i toplotno) je pripojen kući, sa mogućnošću potpunog otvaranja ka prirodi, i pametne kontrole platnenih zastora na staklenoj fasadi i krovu, tako da je prostor trema živ, reaguje na promene u okruženju i štimuje atmosferu životnog prostora kuće prema vremenskim prilikama i raspoloženjima stanara. U tom smislu, ispunjava spektar različitih atmosfera u rasponu od potpuno zatvorenog do potpuno otvorenog prostora, I u smislu staklenih panela, I u smislu zasena. Za veće kuće, pametni trem znači da cela prstenasta zona oko ognjišta može da postane veliki životni prostor. Manji ili ekonomičniji tipovi Eko-kuće, umesto pametnog mogu imati klasični trem, ili tradicionalno “konk” - otvoren je ka prirodi, natkriven i linijski prati kuću otvarajući je ka dvorištu. U svakom trenutku svaki klasičan trem može postati pametni.
Objekat opštegradskog centra nadovezuje se na osnovnu logiku Eko-kuće. Čini ga centralni volumen u kojem je prostor multifunkcionalne sale u prizemlju, a poslovni apartmani i veći radni prostori na spratu. Oko centralnog volumena u prizemlju se razvijaju manje prostorne jedinice za uslužne delatnosti (apoteka, frizer, piljara, radionica). Objekat teži polivalentnosti i umrežavanju pojedinačnih radnih jedinica - svi prostori konvergiraju ka zajedničkoj centralnoj sali, i međusobno se nadovezuju jedni na druge, tako da se više prostora može spajati ili razdvajati po potrebi. Krov iznad lokala u prizemlju je ozelenjen, a fasada jezgra koje se uzdiže u sredini ventilisana.
