Projekat za novu zgradu Fakulteta muzičke umetnosti u Beogradu nastaje kao rezultat spoja dve vrste energije – energije učenja o muzici i stvaranja muzike, sa energijom velikih okupljanja, kako studentskih, tako i javnih, prilikom izvođenja i kontemplacije muzike. Prostori nastave se terasasto odižu od tla iznad 4 koncertne sale i amfiteatra, formirajući pritom veliki stepenasti ulazni hol uz sale ispod, i niz kaskadnih krovnih bašti uz učionice iznad. Prostori mira i koncentracije, mnoštvo različitih individualnih zvukova koji se paralelno odvijaju u pojedinačnim učionicama orijentisani su ka tišini neba, ka krovnim baštama, ka gradu i niz Dunav u daljini, a zaštićeni su i direktno povezani sa grandioznim događanjima u holu i salama ispod njih. Terase se odižu u visinu u naizmeničnom ritmu od 3 i 4m spratne visine, i to od nivoa prizemlja - 4, 4, 3, 4, 3, 4, 3.
Lokacija buduće zgrade je deo poteza koji predstavlja živi dokument industrijske arheologije Beograda, a na rubu je velike prostorne transformacije u budućnosti izgradnjom Linijskog parka i stambeno-poslovnog kompleksa Marine Dorćol, kao i prenamenom termoelektrane „Snaga i svetlost‟, pa je u tom smislu ona ujedno i zametak novog, budućeg razvoja grada ka reci, kao i memento važne istorije grada koja u tom procesu ne sme da se izgubi. Zgrada Fakulteta se stepenasto otvara ka okruženju, kako u vertikalnom, tako i u horizontalnom planu, čime se u parteru posetioci postepeno uvode iz pravca Dunavske ulice i Linijskog parka na plato Fakulteta. Terasastim spuštanjem zgrade ka severozapadu, zeleni potez Linijskog parka vizuelno se uspinje na krovne bašte, gradeći novo zeleno brdo kao važan element budućeg identiteta Dunavske ulice i njenog neposrednog okruženja.
Stepenastim smicanjem u horizontalnom planu formira se više ulaza u zgradu – za studente, za javnost, za biblioteku, za izvođače i unos instrumenata i za zaposlene, što je za instituciju fakulteta i za velika javna okupljanja izuzetno važno. Takođe, time je ulazni hol u nivou prizemlja zoniran u logične pristupne celine, tako da svaki tip korisnika može nesmetano da funkcioniše nezavisno od drugih. Koncertne sale i amfietatar su pozicionirani uz Linijski park, sa pristupom za zaposlene i za izvođače iza njih, dok je veliki ulazni hol za studente i javnost orijentisan ka Dunavskoj ulici na jugozapadu. Javnost ima pristup koncertnim salama direktno iz prizemlja. Najveća koncertna sala za simfonijski orkestar je na krajnjem jugoistoku, uz servisnu saobraćajnicu unutar parcele, dok je sala za džez otvorena ka platou Fakulteta i ka Linijskom parku, uz mogućnost potpunog odvajanja i organizacije pristupa događajima direktno sa platoa. Na delu prizemlja najisturenijem ka Dunavskoj ulici nalazi se biblioteka, koja takođe po potrebi može nezavisno da radi u odnosu na ostatak zgrade fakulteta.
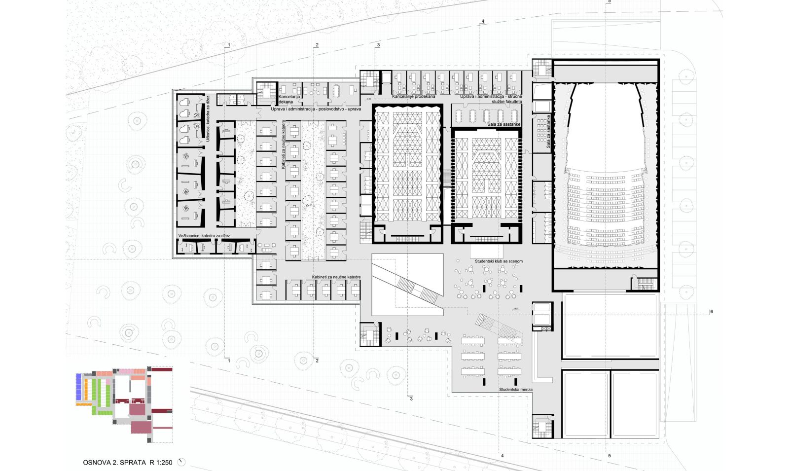
Volumen ulaznog hola je stepenasto zoniran po visini za različite tipove okupljanja studenata, tako da se studentski život odvija po kosini uspinjanja zgrade, iznad javnog prizemlja. Celom dužinom hola proteže se otvoreno stepenište, u vidu kose promenade, interne ulice kojom se kreću studenti, ka prostorima za nastavu na visini. Nivoi ulaznog hola su organizovani po prstenovima koji prate stepenice i predstavljaju tri glavne tačke zadržavanja i okupljanja većih grupa studenata u toku dana. PRVI PRSTEN je najbliži ulazu, odmah iznad amfiteatra i predstavlja vezu sa stručnim službama i skriptarnicom. Tu se odvijaju upisi, prijave ispita i ostale proceduralne aktivnosti koje podrazumevaju veliki broj ljudi (sa i van fakulteta) koji čekaju i razmenjuju informacije. Za vreme naučnih konferencija, ovaj prsten postaje glavni prostor za okupljanje gostiju za vreme pauza, jer je u direktnoj vezi sa amfietatrom i salama za konferencije. DRUGI PRSTEN je na nivou studentskog kluba i prostora za ručavanje – velika prostrana i osunčana galerija glavno je mesto druženja i opuštanja studenata, sa pogledom ka prizemlju sa visine. Sa druge strane drugog prstena, na istom nivou nalaze se kabineti nastavnika, zvučno i vizuelno izdvojeni volumenom hola u odnosu na klub i menzu. TREĆI PRSTEN je na nivou sprata za teorijsku nastavu na kojem sve katedre zajedno uče, i on je mesto glavnog okupljanja studenata pre ulaska u sale. Od ovog prstena na gore kreću ostali prostori za nastavu.
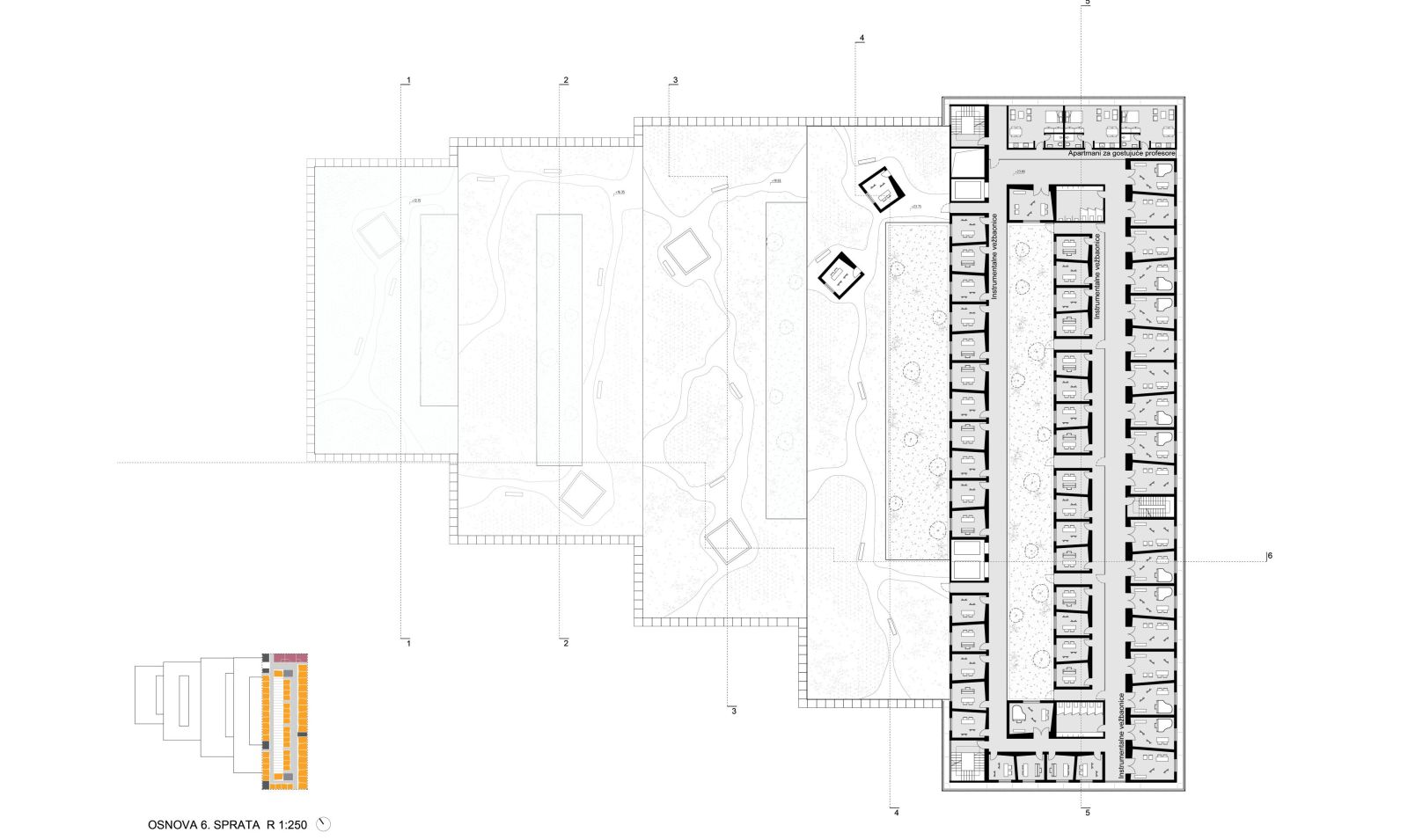
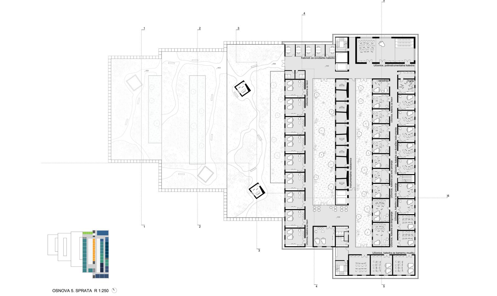
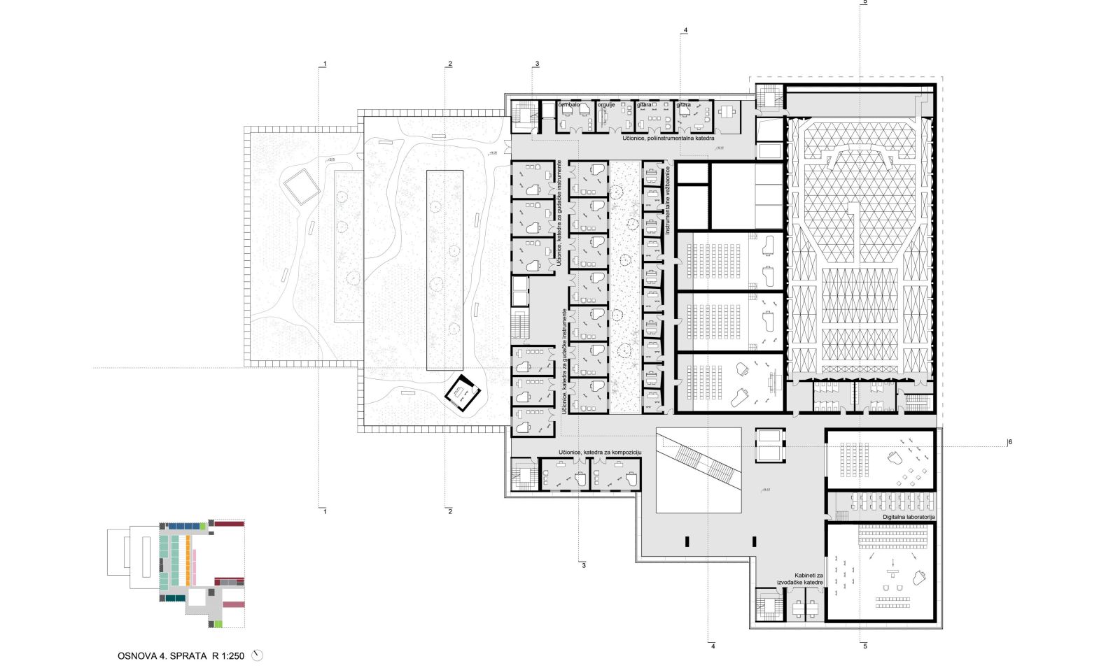
U odnosu na ulazni hol, svi prostori za nastavu se terasasto nižu na gore, prateći stepenasti rast koncertnih sala ispod njih. Na najnižem delu (nivo 2), odmah iznad koncertne sale za džez je katedra za džez, isturena ka Linijskom parku i platou Fakulteta, izdvojena i time izolovana od ostatka zgrade. Na ovom nivou su svi kabineti nastavnika (vezani za teoriju na nivou iznad), kao i studentski klub i menza u prostoru ulaznog hola, na drugom prstenu. Nivo 3 je glavni sabirni nivo za sve prostore nastave, i na njemu su organizovane učionice za teorijsku nastavu koju sve katedre pohađaju zajedno. Na ovom nivou su i velike sale za instrumentalnu nastavu i ispite. Nivoi 4 i 5 pripadaju pojedinačnim katedrama sa učionicama za instrumentalnu nastavu, i to prema potrebnim visinama prostorija - na nivou 4 (visina 3m) su katadra za gudačke instrumente, za kompoziciju i deo poliinstrumentalne katedre, dok su na nivou 5 (visina 4m) katedre za kamernu muziku, solo pevanje, klavir, duvačke instrumente, dirigovanje i drugi deo poliinstrumentalne katedre (harfa i udaraljke). Nivo 6 je najviši i pripada najvećem broju vežbaonica, koje su time odvojene od ostatka zgrade, i zvučno i po pitanju privatnosti, i imaju direktan pristup liftovima iz ulaznog hola u prizemlju. Ostatak vežbaonica je disperzno raspoređen po zgradi na drugim nivoima, dok je 6 vežbaonica u otvorenom prostoru na zelenim krovovima, gde se formira poseban prirodni ambijent za susret studenta i muzike 1 na 1. Tri zvučno najintenzivnija prostora - katedra za džez, poliinstrumentalna katedra za udaraljke, i katedra za ples - su pozicionirane u tri krajnje tačke horizontalnog plana Fakulteta, i to džez ka parku i glavnom platou, ples ka Dunavskoj ulici (kao specifična vizura iz ulice ka školi), a udaraljke ka Dunavu i Linijskom parku na severoistoku. Uprava i administracija fakulteta su smeštene u nivoima iza koncertnih sala, u privatnijoj zoni ka Linijskom parku, zaštićene su od glasnog ulaznog hola, sa pogledom ka Dunavu i Termoelektrani „Snaga i svetlost‟ - stručne službe su na nivou 1, uprava i kabineti nastavnika na nivou 2, apartmani za gostujuće predavače na najvišem nivou 6, radi privatnosti i tišine, a pomoćne službe u podzemnom nivou. Amfiteatar, sale za konferencije, kabineti nastavnika za teorijsku nastavu, i sale za teorijsku nastavu su grupisane na istoj vertikali, povezani direktnim liftovima i stepenicama, sa ulaskom u amfitetar iz najvećeg rpostora na nivou prizemlja.
Stepenovanje volumena zgrade u vertikalnom i horizontalnom planu ka jugu i zapadu doprinosi da su glavni ulazni hol i zajednički prostori studenata ka Dunavskoj ulici na jugu direktno osunčani tokom većeg dela dana, pa postaju energetski najvibrantnije mesto Fakulteta - generator kreativnosti i koncentracije studenata i nastavnika. Istovremeno velike visine hola na nivou svakog prstena doprinose upadu dnevnog svetla duboko u unutrašnjost prostora. Sa druge strane, učionice kaskadno padaju ka zapadu, tako da su u večernjim časovima obasjane zalazećim suncem nad terasastim krovnim baštama. Radni prostori nastavnika su orijentisani ka severu, pa tokom dana dobijaju difuzno dnevno svetlo prijatno za rad. Uvođenjem linijskih unutrašnjih dvorišta na poslednjim nivoima, svi prostori za učenje dobijaju svoje prirodno osunčanje i svež vazduh, dok zgrada istovremeno ostaje kompaktna u osnovnom volumenu, pa time jednostavna za grejanje i klimatizaciju bez velikih toplotnih gubitaka. Ujedno, svi prostori nastave na višim nivoima su uvođenjem unutrašnjih dvorišta i kaskadiranjem uvek unakrsno provetreni.
Fragmentisanost svakog nivoa na blokove prostorija po tipovima doprinosi da se zgrada može grejati i hladiti po zonama, dok međuprostori doprinose dodatnom toplotnom izolovanju grejanih u odnosu na negrejane prostore. Veliki ulazni hol je orijentisan ka jugu, pa se solarnim putem prirodno zagreva zimi, čineći time dodatnu bafer izolujuću zonu učionica u odnosu na spoljašnji prostor. Zeleni krovovi leti štite učionice od pregrevanja, dok zimi sprečavaju prekomerni gubitak toplote iznutra. Akustičke strategije su zastupljene na 4 nivoa: 1. Osnovnim, grubim zoniranjem kuće tako da su najbučniji prostori pozicionirani na krajevima u horizontalnom i u vertikalnom planu (sve katedre i vežbaonice na najvišim nivoima ka nebu; teorija kao najtiša u srcu zgrade; katedra za ples, katedra za džez i poliinstrumentalna katedra - udaraljke u tri temena zgrade...) 2. Koncertne sale su dilatirane međuprostorima i duplim plafonima od ostatka zgrade, svaki sprat je fragmentisan na pojedinačne, plutajuće blokove u prostoru po tipu, vežbaonice su svuda izdvojene sa duplim ulaznim prostorom 3. Predviđeni su pregradni zidovi i zone ploča sa spuštenim plafonima dovoljne debljine radi postavljanja dodatnih obloga za zvučnu izolaciju, kao i šuplji međuprostori kao zvučni izolatori (oko sala) ili kao amplifikatori zvuka, u koncertnim salama ispod poda gledališta i iznad plafon a 4. Dupla fasadna opna oko nivoa učionica doprinosi akustičkoj zaštiti od buke iz spoljašnjosti.
U duhu vredne industrijske prošlosti neposrednog okruženja sa jedne strane i energije mladosti kojom će intenzivno zaživeti ceo prostor, osnovni identitet novoj zgradi Fakulteta muzičke umetnosti daje plavičasta perforirana opna od patiniranog bakra koja obavija prostore za nastavu odignute od nivoa tla, i crveno opekarsko popločanje glavnog platoa, sa zrakastim drvoredima mladih breza ka Dunavskoj ulici i Linijskom parku. Između ova dva sloja je prozračni ulazni hol velikih visina u staklu visoke providnosti, kroz koje se naziru sale i konstruktivni elementi u natur betonu u enterijeru. Cela struktura je suptilno prošarana elementima u jarkim bojama - limeta žute vertikalne komunikacije, koso stepenište u holu i vežbaonice na krovovima, i mak crveni enterijer džez sale koja proviruje ka glavnom platou. Fasade ka krovnim terasama odlikuje belina, i ritmično ređanje prozora sa staklom suptilno zelenkaste nijanse providnosti. Ravni krovovi odiđu prirodnošću i neformalnom, zen atmoferom, prevashodno su u belom šljunku ozelenjeni neformalnim grupama bambusa, niskim žbunastim zelenilom i mestimičnim travnatim površinama.
