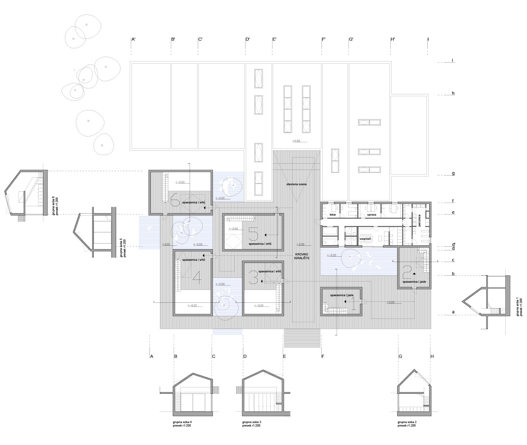
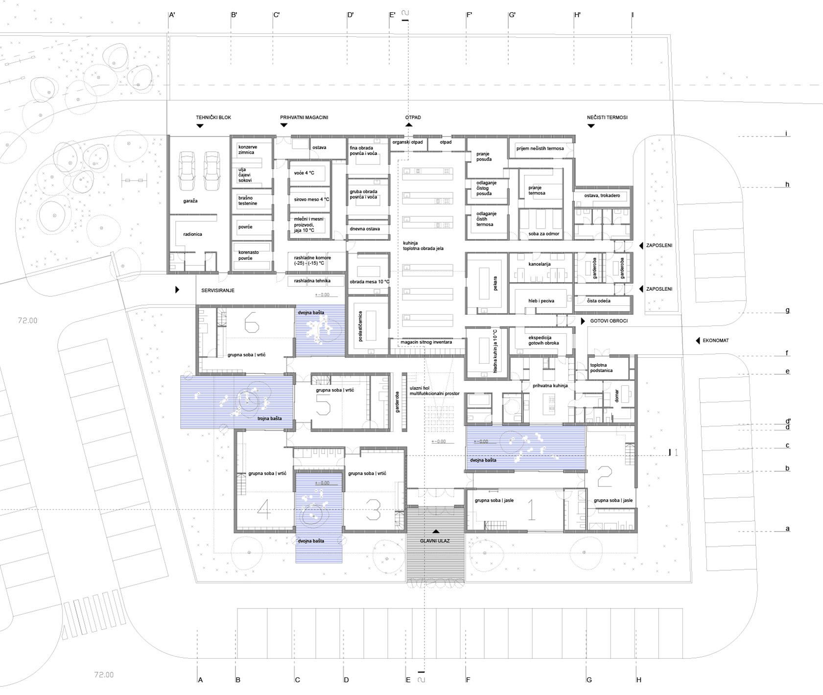
Dvojni objekat - kuhinja i obdanište - osmišljen je tako da i jedan i drugi deo proizilaze iz logike kretanja - u kuhinji hrane, a u obdaništu dece. Pripremi hrane je potreban čist i jasno organizovan sistem prostorija, od prihvatnog magacina, do ekspedicije gotovih obroka, dok je, detetu potreban prostor koji pruža mogućnosti - umesto jednoznačnog kretanja prostor obdaništa uvek otvara nove putanje, a umesto kontinualnog boravka u istoj učionici, uvek nudi mogućnost promene ambijenta, radi stalnog stimulisanja pažnje i održavanja koncentracije. Složenost prostora inicira razmišljanja i formiranje sopstvenih tumačenja i značenja, pa dete upoznajući i istražujući prostor oko sebe postepeno razvija stav prema okruženju i svetu. Iz ovih razloga zgrada obdaništa teži da postane sastavni deo procesa učenja. Šest grupnih soba - "kućica" - razmicanjem određuju zajednički prostor između - ulazni hol, komunikacije i bašte. One se šire iznutra ka spolja, čime dete postepeno „osvaja” prostor napredujući od sopstvene učionice ka velikom zajedničkom igralištu na krovu. Odizanjem igrališta od tla na krov zgrade deci se pruža novi, samo njima namenjen prirodni ambijent u nivou krošnji drveća, zaštićen od saobraćaja i drugih smetnji iz okoline i sa pogledom na okruženje odozgo, umesto odozdo, što je prirodna pozicija deteta u svetu odraslih. Krovno igralište miri potrebu roditelja za sigurnošću deteta, sa potrebom deteta da istražuje i otkriva sopstveno okruženje. Sa šireg aspekta, karakteristična arhitektura obdaništa kao „grupacije kućica na krovnom igralištu”, doprinosi fomiranju identiteta naselja koje tek nastaje na trećem kraju Beograda, a time i osećaju prepoznatljivosti mesta kod deteta, i formiranju asocijativnih veza sa prostorom u kojem svakodnevno boravi.
