KONCEPT | Osnovni cilj ovog projekta je da se na ekonomičan i racionalan način postigne kvalitet stanovanja i svakodnevnog života budućih stanara. Dvojnost lokacije - naglo suočavanje dva postojeća tipa stanovanja i dve urbane matrice, naselja Zemun polje na jugozapadu, i naselja Kamendin na severoistoku, rešavamo postavljanjem novog objekta koji, umesto granice, predstavlja polupropustljivu membranu, postepeni prelaz iz jednog ambijenta - vojvođanskog domaćinstva - u drugi - ambijent gradskog bloka, težeci da objedini čitavo naselje u jednu skladnu celinu. Predmetna parcela se proteže na granici između ova dva tipa susedstva. Sa jedne strane je naselje Zemun polje - usitnjene urbane strukture, koju čine stare individualne porodične kuće sa pripadajućim dvorištem, i manje stambene zgrade namenjene pristupačnom stanovanju. Sa druge strane, ka Batajničkom drumu, je naselje Kamendin, novije izgradnje i uvećane urbane matrice - čine ga tri bloka 100x100m, sa masivnim stambenim objektima od oko 1000m2 u osnovi. Arhitektura novog objekta socijalnog stanovanja u svojoj veličini i broju stanova koje će obezbediti prati razmeru masivnih blokova naselja Kamendin, ka kojem je i orijentisana svojom prednjom fasadom, dok podelom na sitnije elemente, razmere jedne kuće (ili širine jednog stana) postižemo utisak usitnjene strukture i manjih i intimnijih životnih prostora, kojima želimo da održimo i podstaknemo kvalitet svakodnevnog života kakav je u starom delu naselja Zemun polje. Stoga, osnovni cilj projekta je dvojni - negovanje individualnog identiteta stanara sa jedne strane, i osećaja susedstva i pripadnosti široj zajednici sa druge.
URBANISTIČKO REŠENJE | Lokacija objekta je upravna na pravac puteva koji povezuju dva načina dolaska iz centralne zone Beograda, sa jugozapadne strane vozom, a sa severoistočne automobilom ili javnim prevozom, autoputem i Batajničkim drumom. Na samoj parceli su jasno vidljive pešačke staze koje je presecaju povezujući dve ''polovine'' naselja - železnicku stanicu i Zemun polje sa jedne strane, sa drumskim prilazom i naseljom Kamendin sa druge. Propustljivost novog objekta ima za cilj da podrži kretanje pešaka izmedu ove dve celine, te su zato elementi koji čine njegovu strukturu postavljeni paralelno sa ovim pravcem. Na ovaj način sve jedinice su upravne na osnovnu pristupnu Ulicu Akrobate Aleksića, a njihovim razmicanjem se ostvaruju poprečne veze sa zadnjim dvorištem - u kojem je smešten parking na otvorenom, sa leve i desne strane, i centralno podužno dečije igralište u samoj sredini bloka, ušuškano objektom, visokim zelenilom i baštama susednih parcela. Sa prednje strane objekta je otvoreno pristupno dvorište jedinicama, koje služi kao vazdušna pauza između stanova, i ulice i uličnog parkinga. Kako je nagib Ulice Akrobate Aleksica od jednog do drugog kraja parcele 2.7m, pristupno dvorište i sami objekti su visinski pozicionirani kaskadno - u tri celine, odnosno lamele A, B i C, svaka sa svojom pripadajućom garažom. Kota prizemlja svake lamele je na najnižoj koti ulice na visini od 1.2m od terena - gde i dostiže maksimalnu dozvoljenu visinu venca 11.5m, dok je na najnižoj u visini sa terenom, što sa te starne omogućava nesmetani pristup objektu licima sa posebnim potrebama. Svaka lamela ima (1) dva ulaza, levi na višoj koti sa stepenišnim pristupom, i desni, na koti terena sa minimalnom rampom; (2) pešački prolaz ka zadnjem dvorištu u prizemlju; (3) pristup garaži sa Ulice Akrobate Aleksića. Između lamela su kolski pristupi otvorenom parkingu iza objekata, koji su pozicionirani tako da se nastavljaju na dve postojece, sada slepe ulice, iz pravca Ulice Tomice Popovica.
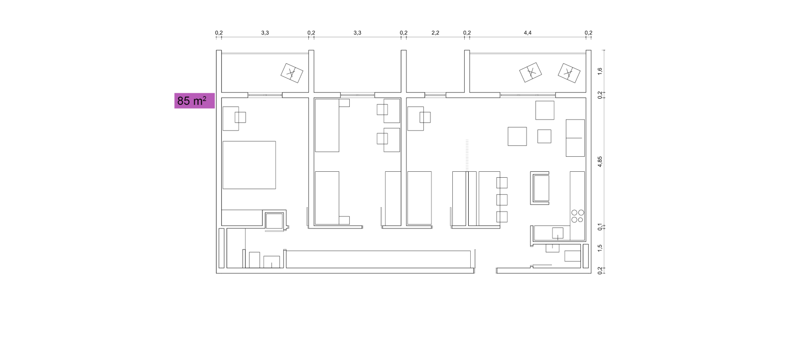
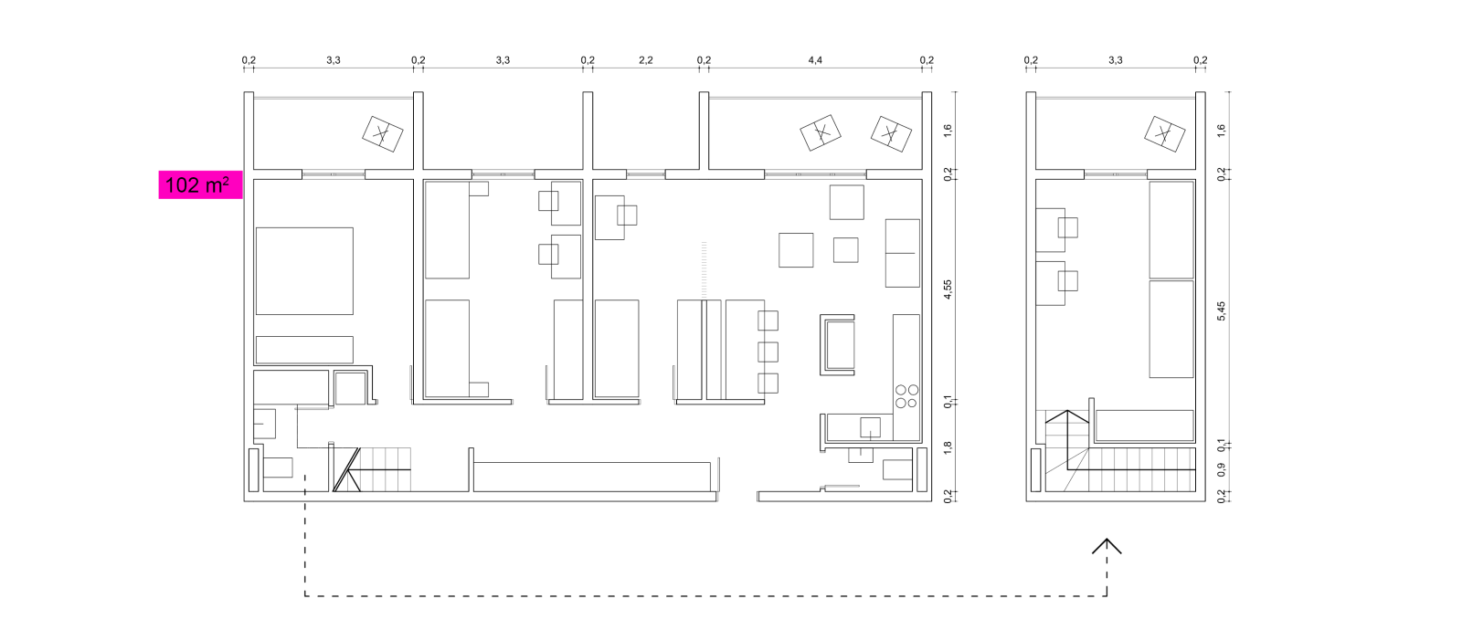
ORGANIZACIJA STAMBENIH JEDINICA | Svaka lamela podeljena je centralnim pristupnim hodnikom na dva niza stanova, tako da su uz hodnik u dubini objekta grupisane servisne prostorije, kupatila, toaleti i ulazni prostori, dok su dnevni prostori, prostori za obedovanje i spavanje orijentisani ka glavnim fasadama dubine do 4.85m, prirodno osvetljeni i provetreni. Osam tipova stanova (garsonjere, jednosobni, jednoiposobni, dvosobni, dvoiposobni, trosobni, troiposobni i četvoroiposobni) su po dužini organizovani na tri osnovna tipska rastera - 3.3m za minimalne dnevne sobe, spavaće sobe i garsonjere, 4.4m za dnevne sobe u stanovima sa više kvadrata, i 2.2m za takozvane „polu-sobe“ pripojene osnovnom prostoru stana. Na taj nacin stanovi svake lamele dobijeni su podelom na ova tri tipska rastera, ritmično, a prema potrebi specifičnih stanova (4.4 - 3.3 - 4.4 - 2.2 - 3.3 - 2.2 - ... itd.). Na isti način je rešena podzemna garaža, smenjivanjem tipskih rastera (7.7m su tri parking mesta, 5.5m su dva, a 9.9 su četiri parking mesta). Razmicanjem stambenih jedinica dobijeni su prolazi kroz zgradu, i ulazi u prizemlju, a na spratovima zajednički prostori za stanare - za ostavljanje bicikala i zajedničke staklene bašte. Ulazi u garaže su rešeni „umetanjem“ jednog ili dva stana po visini na mestu pristupne rampe, dok je prizemlje i potkrovlje uvek čisto, te je na potkrovlju velika zajednička terasa - sušionica i prostor za okupljanja stanara. Svaki stan ima mogućnost proširenja u vidu terase (a radi ekonomičnosti rešenja, moguće je graditi i potpuno bez terasa), sa varijacijama u tipu terase po spratovima. U prizemlju terase su ograđene punim zidom radi intimnosti, na spratovima metalnom ogradom, dok je u potkrovlju mala krovna lođa - izdvojena staklenom ogradom i sa otvorenim pogledom na nebo.
KONSTRUKCIJA, MATERIJALIZACIJA I TEHNIČKI DETALJI | Ostvareni tipski rasponi 2.2m, 3.3m i 4.4m su ispraćeni konstruktivnim rešenjem objekta - osnovna konstrukcija je armirano - betonska, a konstruktivni sistem mešovit: na nadzemnim etažama su armiranobetonska platna između stanova, dok je u garaži sistem armiranobetonskih ramova - greda i stubova po istom rasteru, u delu garaže za parkiranje. Osnovna materijalizacija fasadnih površina je u dva osnovna tona: bela silikonska disperzija sa mikrovlaknima za poprečne zidove, i crna silikonska disperzija za unutrašnjost svakog elementa - frontalni zid i tavanice. Na taj način postiže se utisak maksimalne ošupljenosti cele strukture, u odnosu na velike kvadrature koje su potrebne za 270 stambenih jedinica. Kose krovne ravni obložene su crnim metalnim panelima. U enterijeru, svetlijim tonovima (disperziona boja tona light ivory za zidove, jasenov parket ili laminat na podovima) se postiže topliji kućni ambijent u odnosu na monohromnu fasadu objekta. Prednje dvorište je rešeno u dva tipa površina: betonske kocke u rasteru u travi, kao i betonske kocke u betonu na pešačkim stazama. Na isti nacin su rešene i bočne strane kaskada. Objekat je prizemnim delom odignut od terena (od 1.2m do 0.4m) tako da se postigne utisak da elementi „lebde“, a na taj nacin su i zašticeni od atmosferskih voda. Detalj spoja dve jedinice je na fasadnoj ravni rešen upuštanjem tankog žljeba, radi postizanja efekta dva spojena elementa, a ne jednog zida. U ovim žljebovima sakriveni su kanali za odvod atmosferskih voda sa krovova i terasa objekta.
