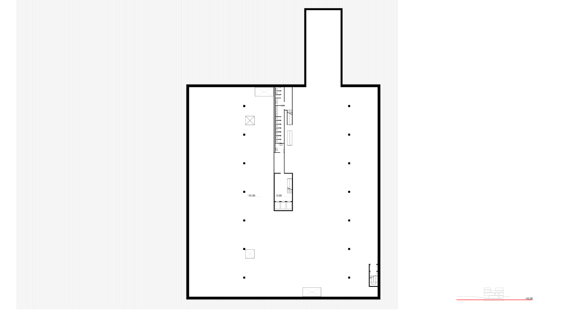
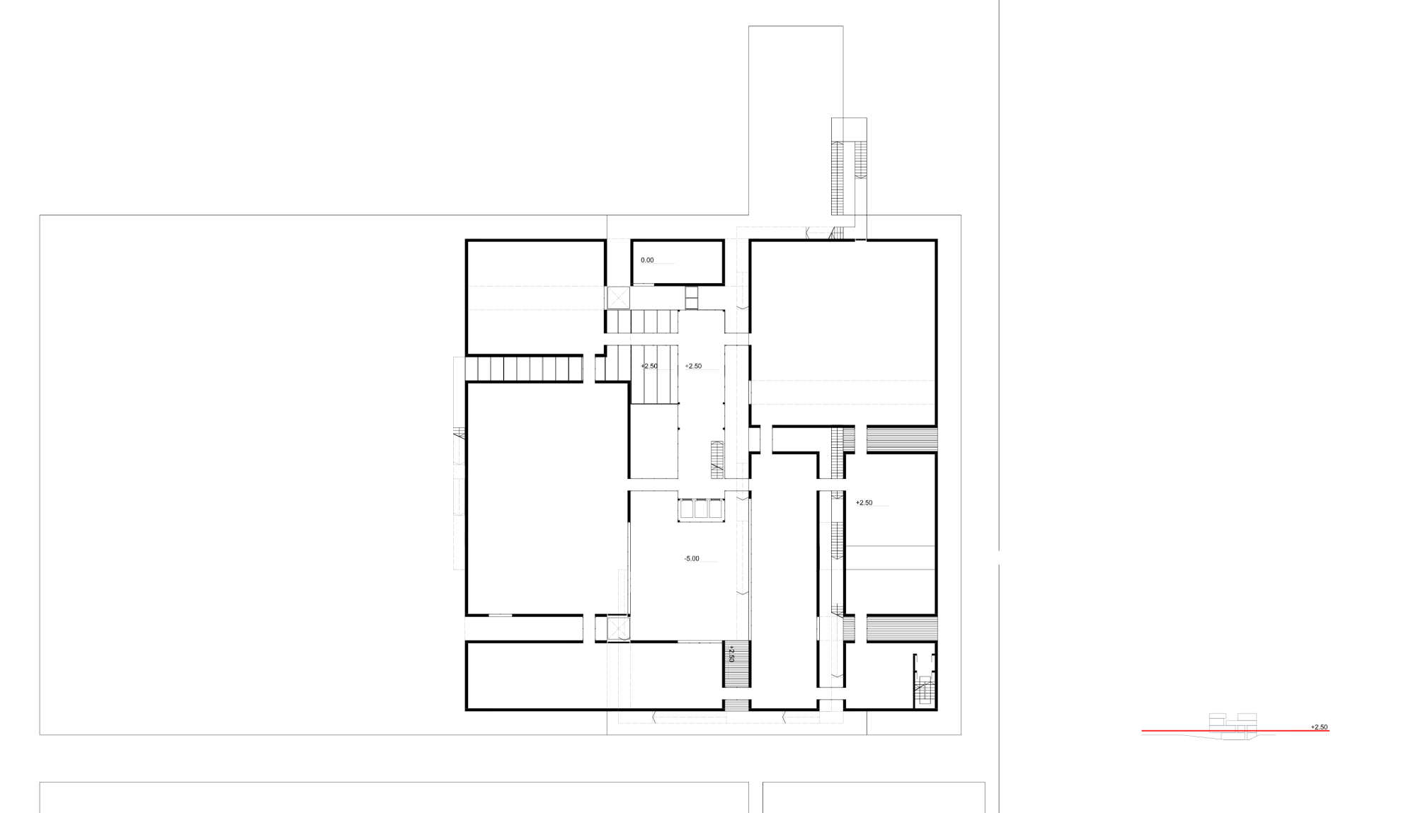
CONCEPT | Museum 16/25 is positioned at the location of the former Yugoslavian pavilion of Staro Sajmiste in Belgrade and it is a part of a larger museum complex at this site. A museum is decomposed into its basic, further indivisible units - galleries. The building consists of 16 differently proportioned spaces, that due to their positions provoke one to wander and initiate a sequence of unplanned situatuations.
KONCEPT | Proizvodnja prostora za proizvodnju zahteva planiranje neplaniranih događaja koji će inicirati stvaranje. Muzej 16/25 je pozicioniran na mestu jednog od nekadašnjih Jugoslovenskih paviljona Starog Sajmišta i deo je većeg muzejskog kompleksa na ovoj lokaciji. Muzej je razložen na svoje osnovne, dalje nedeljive, jedinice – galerije. 16 različitih galerija gradi objekat i svojim međuodnosom i položajem u okviru njega provocira lutanje i niz neplaniranih situacija. U zaleđu objekta nalazi se 16 ateljea. Jedan umetnik dobija jedan broj (1-16): jednu sobu za život i stvaranje i jednu sobu za izlaganje. Umetnik bira u kom trenutku ili nizu trenutaka će svoj proizvod izložiti javnosti. Cilj je mešanje procesa stvaranja i procesa izlaganja, gde granica među njima postaje nevidljiva i nevažna.
