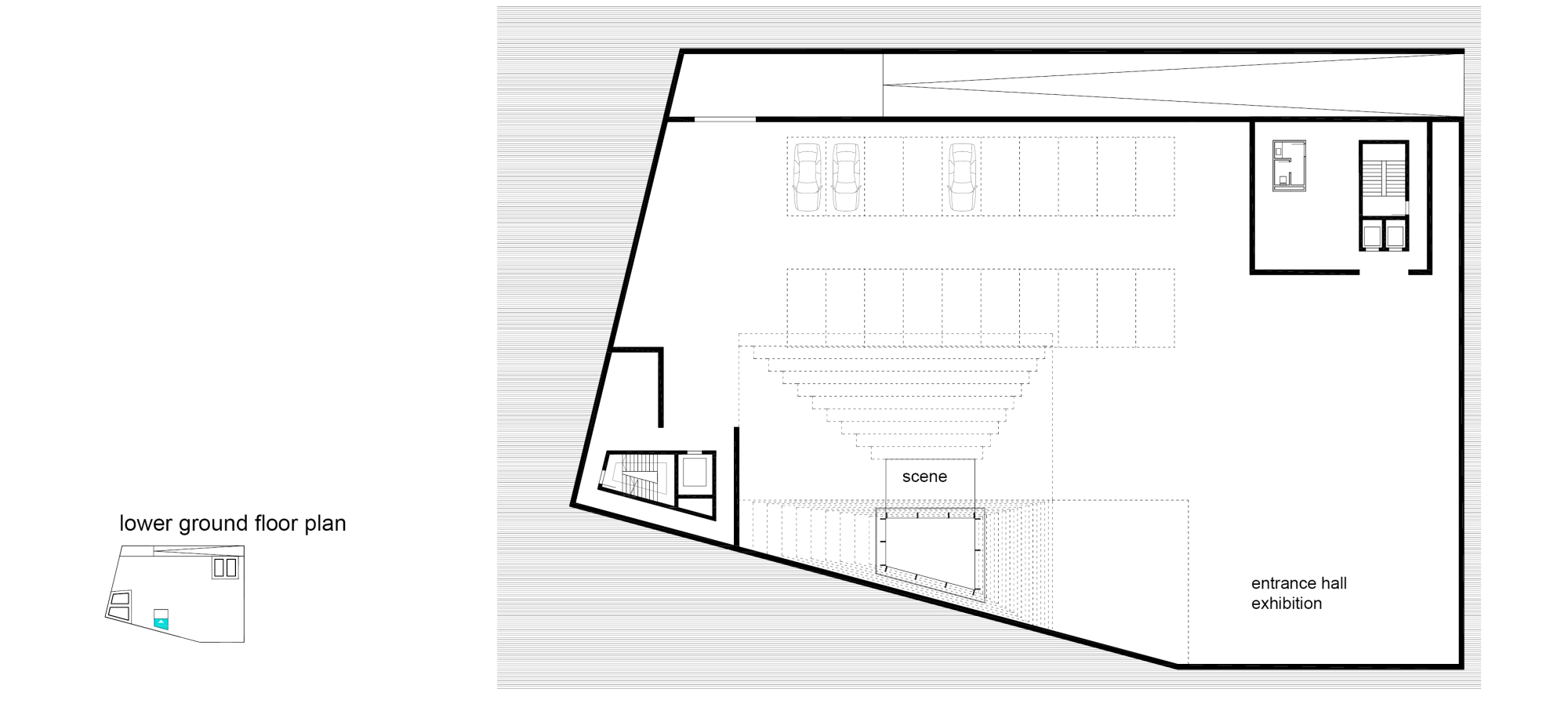
CONCEPT | Cultural center is perceived as a mediator between the public and the artists. It’s main role is to inform and educate everyone, and to include culture in our everyday lives. The idea is to design a space which would realize this mediation. By offering access to the roof from every level of the object, a public space is created and the common notion of a roof is redefined. It becomes an open space flowing throughout the whole building. Thus, this void connects the park in front, the spaces inside the center and the inner private gardens of the urban block behind it. There is a roof terrace on every floor, and these are then connected with staircases to form a continuous space, which can function as a whole, or, if necessary, as several independent areas. The boundary between the private and the public is blurred in order to let the culture penetrate our lives.
